HIGHLIGHTS

Beds
Baths
Living
Lot
Sold for
$1,725,000

Features of the Home Include:

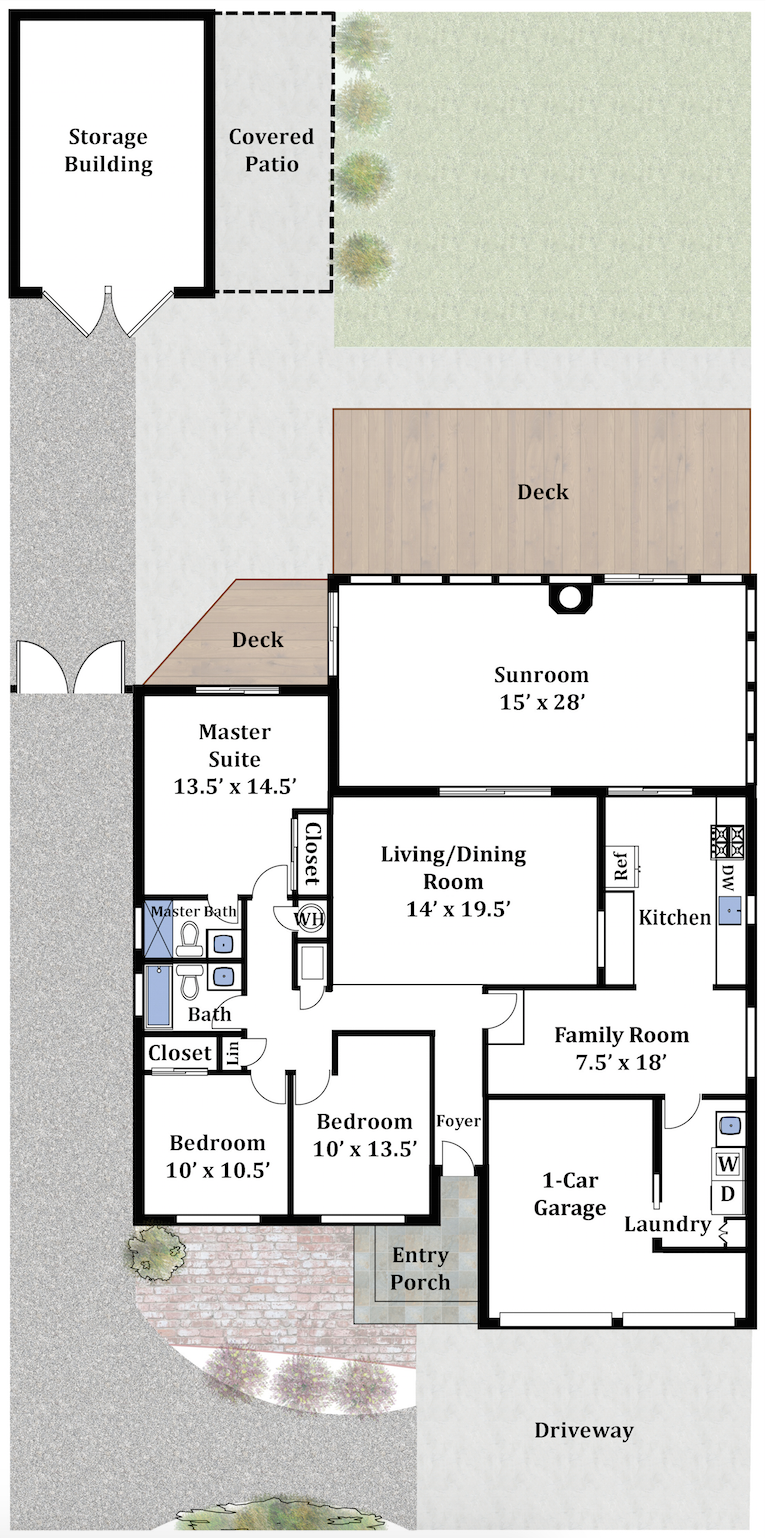
  • 3 bedrooms and 2 baths on a single level
  • Freshly landscaped front yard with wide path leads to a welcoming covered porch 
  • Stylish paneled front door opens to a traditional foyer with center lighting and introduces crown molding and refinished hardwood floors that extend throughout most of the home
  • Spacious living/dining room combination has recessed lighting and opens to the sunroom through wide sliding glass doors; the formal dining area has a convenient pass through opening and serving counter to the kitchen 
  • Updated kitchen, open to the sunroom and family room, features abundant rich wood cabinetry with contemporary hardware, Corian countertops, and a built-in desk area with overhead cabinetry
  • Stainless steel appliances, all GE Profile, include a 4-burner gas range, microwave, dishwasher, and refrigerator
  • Open from the kitchen, the casual dining area and family room has hardwood floors, an expansive side window, and convenient access to the foyer 
  • Spacious sunroom, ideal for entertaining and play, is outlined with to-the-ceiling windows and two floor-to-ceiling sliding glass doors to the rear yard; a wood stove is set on a brick platform surrounded by laminate wood flooring
  • Private master bedroom suite features crown molding, a center light, mirrored closet with built-ins, and a sliding glass door to the rear deck; tiled en suite bath has glass-enclosed shower
  • Two additional bedrooms each with crown molding, recessed lighting, and a window overlooking the front yard
  • Full hallway bath is tiled and has a glass-enclosed tub with overhead shower
  • Low-maintenance rear yard, ideal for gatherings and play, features a generous deck that spans the rear of the home, paved walkways and patio space, and level lawn area
  • Detached storage shed with adjoining covered patio/potential carport with access via a side gate
  • Attached, oversized 1-car garage with storage, plus circular driveway for off-street parking
  • Additional features include: laundry room with sink, built-in cabinetry, and Maytag washer and dryer; new paint inside and out; Nest thermostat
  • Approximately 1,510 square feet of living space 
  • Lot size of approximately 7,200 square feet
  • Mountain View schools: Monta Loma Elementary (API 840); Crittenden Middle (API 804); Mountain View High (API 861)
 

p.p1 {margin: 0.0px 0.0px 0.0px 0.0px; font: 12.0px ‘Times New Roman’; -webkit-text-stroke: #000000}
span.s1 {font-kerning: none}
span.s2 {font: 10.0px Helvetica; font-kerning: none}

Specific Schools

Elementary School

Monta Loma Elementary School

Monta Loma Elementary School

  • 460 Thompson Avenue
  • Grades: K-5
  • School Type: Elementary School
  • Student Enrollment: 245
  • School Website >
Send us a note
Send me a note